Tangen 7 lokaler
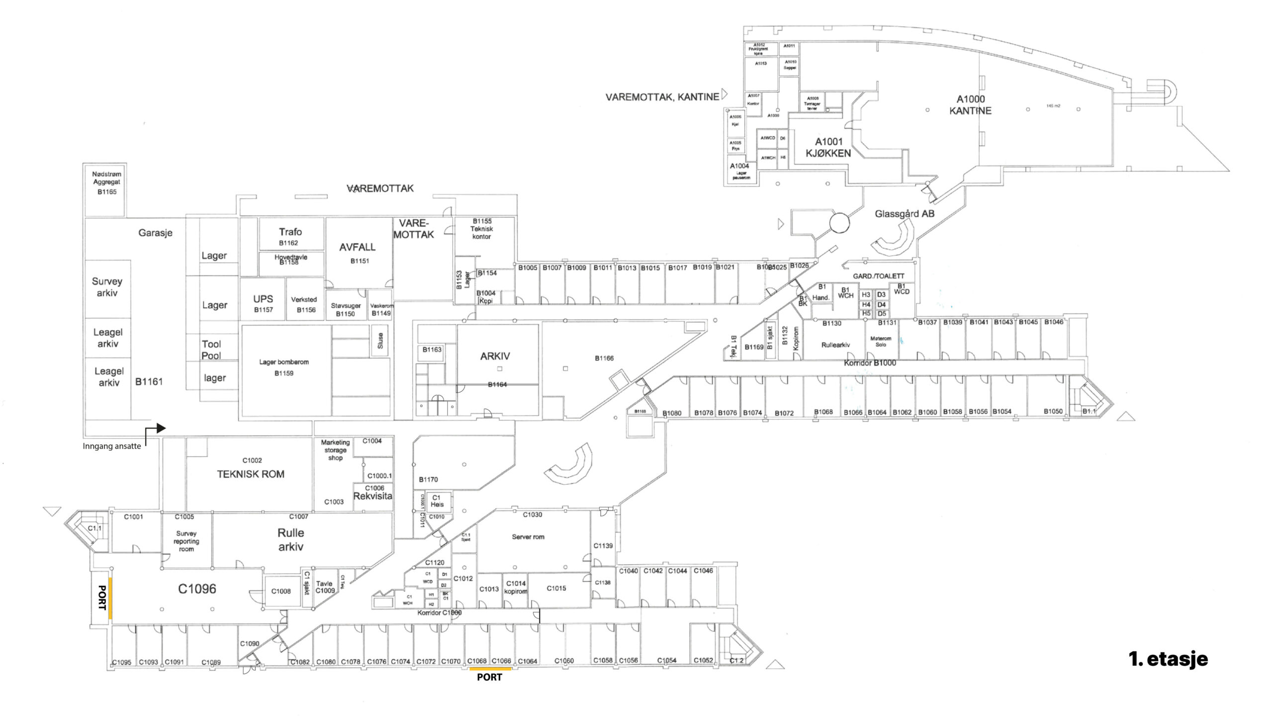
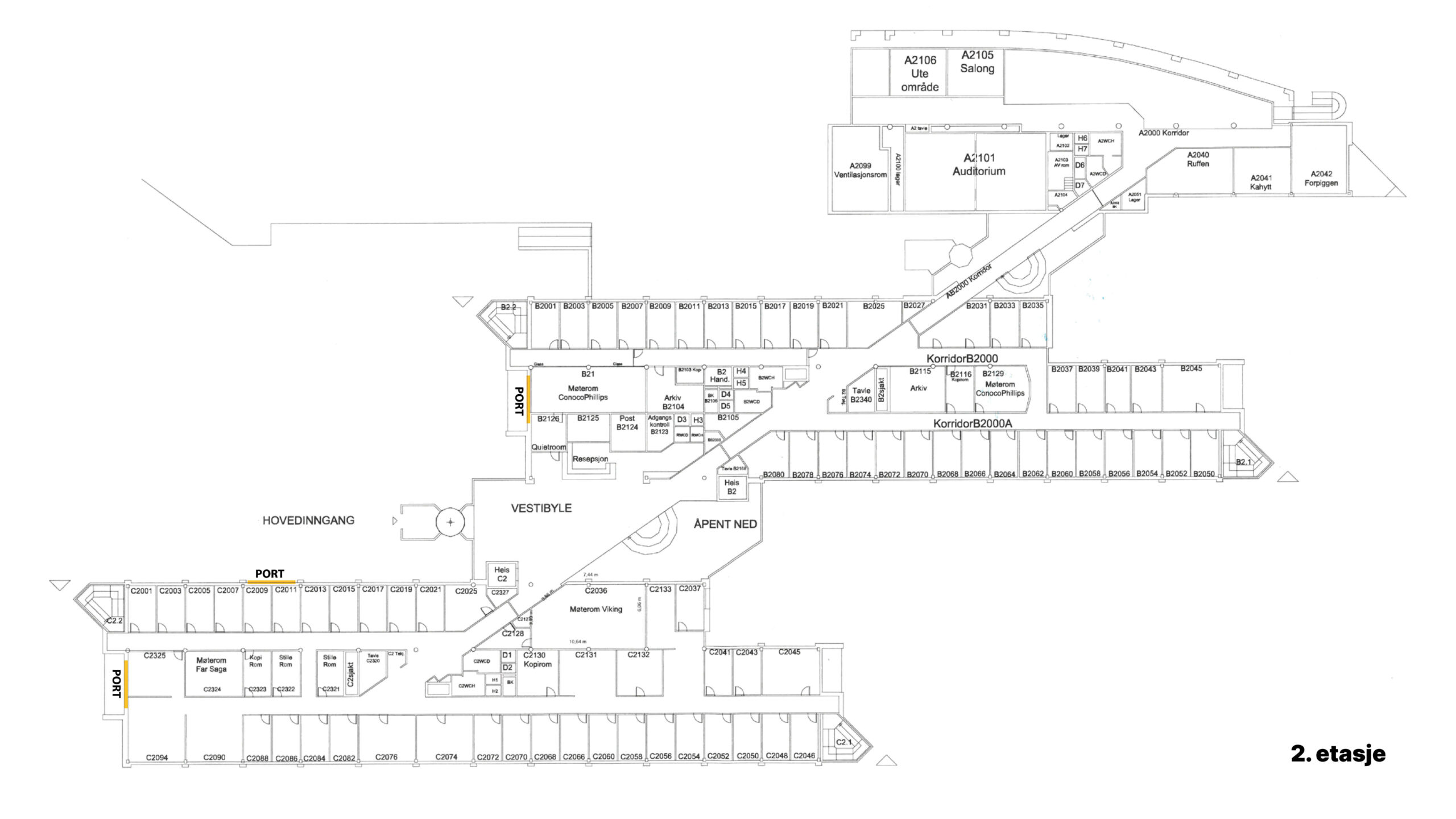
Oversiktskart og gulvplan
For å gjøre planleggingen enklere kan du se oversiktskart og gulvplan over Tangen 7. Her får du en tydelig oversikt over romfordeling, innganger og uteområder, slik at du kan tilpasse arrangementet etter behov.
En hjelpende hånd med på laget
Få profesjonell hjelp til planlegging av selskap og arrangement
Hos oss får du ikke bare lokalet – du får også hjelp av vår koordinator Lene Bråten, som kan bistå med det du måtte trenge.
Hun kan hjelpe deg med:
• Bestilling av mat og serveringshjelp
• Transport og buss for gjestene
• Bordoppsett og planløsning i lokalet
• Teknisk utstyr som mikrofon, prosjektor eller lyd
• Forslag til underholdning eller musikk
• Dekor og blomster
Kort sagt: du slipper å ha kontroll på alle detaljene selv, og kan heller bruke tiden på å glede deg til selve dagen.


